飛騨高山 住まいのパートナー
岐阜県高山市花里町6−108
TEL 0577-32-0009
FAX 0577-32-0102
ホーム
賃貸物件
売買物件
会社案内
募集案内
↓ お部屋の広さを選んでクリック ↓
渡辺不動産の賃貸物件
60u〜
ハイツホワイト/新宮町
新着物件
コメント:駐車2台付
賃料
5万円
間取り
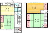
3DK 61.13u
敷金/礼金
2ヶ月/1ヶ月
入居可能日
令和8年5月上旬から
築年数/リフォーム歴
昭和61年築/あり
階建/階
木造2階建/-
田中住宅/下岡本町
新着物件
コメント:駐車2台付
賃料
5万円
間取り
3DK 76.18u
敷金/礼金
2ヶ月/
0ヶ月
入居可能日
令和8年4月中旬から
築年数/リフォーム歴
昭和58年築/あり
階建/階
木造2階建/-
↑ 戻る
宅地建物取引業/岐阜県知事免許(8)第3565号
渡辺不動産有限会社
〒506-0026 岐阜県高山市花里町6−108
TEL 0577-32-0009 FAX 0577-32-0102
お問い合わせは
0577-32-0009